価格 |
2,100万円 |
||
|---|---|---|---|
土地面積 |
235.81m²(71.33坪) |
建物面積 |
116.47m²(35.23坪) |
間取 |
3LDK |
築年月 |
1991/05(築34年) |
小学校区 |
中島小学校 |
中学校区 |
倉敷南中学校 |
お電話でのお問い合わせ
物件番号:7180
お電話でお問い合わせの際は、物件番号をお伝えください。
086-441-5010
営業時間:9:00~19:00
定休日:日・祝日(事前のご予約を承ります。)
ポイント
POINT
【倉敷市中島の中古住宅の不動産/中島小学校】
■小さなお子様も無理なく通える中島小学校まで徒歩10分の750m、遅くなる部活帰りも近くて安心な倉敷南中学校まで徒歩12分の900m、幹線道路にほど近い閑静な住宅地の一角、71坪の敷地に建つ中古住宅のご紹介です。
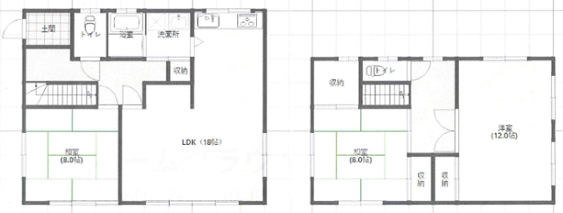
■南庭が広く、日当たりの良い立地です。間取りは、一つ一つのお部屋がゆったりした造りの3LDK。2階の12帖の洋室は、間仕切りをすれば4LDKとしてお使いいただけます。、
■1階には、独立した8帖の和室と二面採光で明るい18帖のLDK。キッチンは壁付けでお料理に集中できますね。キッチンと水回りが一直線に並ぶ間取りで、料理・洗濯・掃除を効率よく行えます。
■2階には、8帖の和室と12帖の洋室。どちらも収納完備で、生活空間をすっきり整えます!!
■南庭は、人目の届かないプライベート空間。充分な広さがあり、家庭菜園やガーデニング、家族でバーベキュー、ワンちゃんのドッグランも叶います。
■お買い物は、隣地にホームセンターユーホーもあり、食品から日用品・衣類まで揃うマルナカ中島店まで徒歩7分の500m、振込みに便利な玉島信用金庫小溝支店まで徒歩4分の260m。
■岡山や倉敷への通勤通学に便利な水島臨海鉄道西富井駅まで徒歩12分の800m、岡山へのマイカー通勤にもアクセス良好、2号線岡山バイパス中島南交差点までお車で3分の600m。
■県立倉敷中央高等学校まで徒歩7分の500m。
■小さなお子様も無理なく通える中島小学校まで徒歩10分の750m、遅くなる部活帰りも近くて安心な倉敷南中学校まで徒歩12分の900m、幹線道路にほど近い閑静な住宅地の一角、71坪の敷地に建つ中古住宅のご紹介です。
■南庭が広く、日当たりの良い立地です。間取りは、一つ一つのお部屋がゆったりした造りの3LDK。2階の12帖の洋室は、間仕切りをすれば4LDKとしてお使いいただけます。、
■1階には、独立した8帖の和室と二面採光で明るい18帖のLDK。キッチンは壁付けでお料理に集中できますね。キッチンと水回りが一直線に並ぶ間取りで、料理・洗濯・掃除を効率よく行えます。
■2階には、8帖の和室と12帖の洋室。どちらも収納完備で、生活空間をすっきり整えます!!
■南庭は、人目の届かないプライベート空間。充分な広さがあり、家庭菜園やガーデニング、家族でバーベキュー、ワンちゃんのドッグランも叶います。
■お買い物は、隣地にホームセンターユーホーもあり、食品から日用品・衣類まで揃うマルナカ中島店まで徒歩7分の500m、振込みに便利な玉島信用金庫小溝支店まで徒歩4分の260m。
■岡山や倉敷への通勤通学に便利な水島臨海鉄道西富井駅まで徒歩12分の800m、岡山へのマイカー通勤にもアクセス良好、2号線岡山バイパス中島南交差点までお車で3分の600m。
■県立倉敷中央高等学校まで徒歩7分の500m。
物件詳細DETAIL
物件名 |
倉敷市中島の中古一戸建て住宅 |
住所 |
倉敷市中島 |
|---|---|---|---|
建物構造 |
木造 |
間取詳細 |
LDK18,和8,和8,洋12 |
築年月 |
1991/05(築34年) |
地上階 |
2階 |
土地面積 |
235.81m²(71.33坪) |
建物面積 |
116.47m²(35.23坪) |
都市計画 |
市街化区域 |
用途地域 |
第一種中高層住居専用地域 |
建ぺい率 |
60% |
容積率 |
200% |
地目 |
宅地 |
土地権利 |
所有権 |
接道 |
北 2m(幅員) 公道 位置指定無 |
||
駐車場 |
縦列2台 |
諸費用 |
|
引渡時期 |
相談 |
現況 |
空家 |
小・中学校区 |
中島小学校 900m
倉敷南中学校 750m |
||
交通 |
水島臨海鉄道 西富井駅まで 徒歩12分 800m |
||
特色/設備 |
公営水道(20mm)、公共下水、都市ガス、照明器具つき、物置あり |
||
情報更新日 |
2026年02月16日 |
次回更新予定日 |
2026年02月17日 |
取引条件有効期限 |
2026年02月22日 |
取引態様 |
仲介 |
※掲載されている物件データが現状と異なる場合は現状を優先します。
ローンシミュレーション
LOAN SIMULATION
- 物件の価格
- 2,100万円
- 月々の返済額
- 円
- ボーナス月
- 円
- 年間の返済額
- 円
- 返済総額
- 円
- 利息合計
- 円
万円
万円
%
年
※毎回の返済額が開始から終了まで均等となる「元利均等返済」で算出しています。
※金利は期間中固定となる固定金利を採用しています。
※月々の返済額は小数点以下を繰り上げしています。
※シミュレーションでの結果は、あくまでも目安で、概算になります。実際にローン契約をする際は、詳細を金融機関にご確認ください。
※実際のローン契約時には諸費用・税金(手数料や印紙税、保証料など)が別途かかりますので、契約の際にご確認ください。
株式会社おおたか不動産COMPANY
所在地 |
岡山県倉敷市東富井857-1 |
||
|---|---|---|---|
免許番号 |
岡山県知事免許(3)第5408号 |
||
会員 |
(公社)岡山県宅地建物取引業協会
(公社)全国宅地建物取引業保証協会
|
||
電話番号 |
086-441-5010 |
FAX番号 |
086-441-5011 |
営業時間 |
9:00~19:00 |
定休日 |
日・祝日(事前のご予約を承ります。) |
