
価格 |
2,085.55万円 |
||
---|---|---|---|
土地面積 |
130.9m²(39.59坪) |
坪単価 |
52.66万円 |
小学校区 |
老松小学校 |
中学校区 |
倉敷西中学校 |
お電話でのお問い合わせ
物件番号:7051
お電話でお問い合わせの際は、物件番号をお伝えください。
086-441-5010
営業時間:9:00~19:00
定休日:日・祝日(事前のご予約を承ります。)
ポイント
POINT
【倉敷市白楽町の売土地の不動産/老松小学校】
■小さなお子様も無理なく通える老松小学校まで徒歩14分の1000m、倉敷成人病センターにほど近い閑静な住宅地の一角に全2区画の新規分譲地が誕生しました!!!
■敷地面積は、どちらも39坪。今ならお好きな区画が選べます。
■建築条件はありません。お好きなハウスメーカーや工務店で夢のマイホームが実現できます。
■お買い物は、旬の食材が揃うニシナフードバスケット市役所北店まで徒歩12分の800m、毎日がセール価格で豊富な品揃えのザ・ビッグ倉敷店まで徒歩12分の800m、買い忘れにも便利なセブン-イレブン倉敷商業高校西店まで徒歩5分の400m、ファミリーマート倉敷西中新田店まで徒歩5分の350m。
■岡山や玉島・福山方面へのマイカー通勤にも便利な国道2号線岡山バイパス笹沖交差点までお車で5分の1000m、アクセスの良さが魅力です。
■急な体調不良はもちろん休日・夜間診療対応が心強い倉敷成人病センターまで徒歩5分の400m、近くて便利な中国銀行倉敷支店まで徒歩6分の450m、倉敷市役所まで徒歩10分の700m、倉敷商業高等学校まで徒歩6分の450m。
■近隣には他にドラッグストア、飲食店、コインランドリーなどの生活利便施設多数!!!徒歩圏内に施設が揃う便利な立地です。
■小さなお子様も無理なく通える老松小学校まで徒歩14分の1000m、倉敷成人病センターにほど近い閑静な住宅地の一角に全2区画の新規分譲地が誕生しました!!!
■敷地面積は、どちらも39坪。今ならお好きな区画が選べます。
■建築条件はありません。お好きなハウスメーカーや工務店で夢のマイホームが実現できます。
■お買い物は、旬の食材が揃うニシナフードバスケット市役所北店まで徒歩12分の800m、毎日がセール価格で豊富な品揃えのザ・ビッグ倉敷店まで徒歩12分の800m、買い忘れにも便利なセブン-イレブン倉敷商業高校西店まで徒歩5分の400m、ファミリーマート倉敷西中新田店まで徒歩5分の350m。
■岡山や玉島・福山方面へのマイカー通勤にも便利な国道2号線岡山バイパス笹沖交差点までお車で5分の1000m、アクセスの良さが魅力です。
■急な体調不良はもちろん休日・夜間診療対応が心強い倉敷成人病センターまで徒歩5分の400m、近くて便利な中国銀行倉敷支店まで徒歩6分の450m、倉敷市役所まで徒歩10分の700m、倉敷商業高等学校まで徒歩6分の450m。
■近隣には他にドラッグストア、飲食店、コインランドリーなどの生活利便施設多数!!!徒歩圏内に施設が揃う便利な立地です。
物件詳細DETAIL
物件名 |
倉敷市白楽町 ①号地の売土地 |
住所 |
倉敷市白楽町 |
---|---|---|---|
都市計画 |
市街化区域 |
用途地域1 |
第一種住居地域 |
地目 |
宅地 |
土地権利 |
所有権 |
建ぺい率 |
60% |
容積率 |
200% |
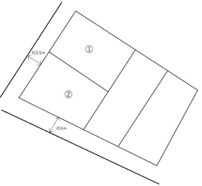
接道 |
西 3.9m(幅員) 公道 9.46m(接面) |
諸費用 |
上下水道負担金 550,000円 |
私道面積 |
- |
セットバック |
有 |
現況 |
更地 |
引渡時期 |
相談 |
小・中学校区 |
老松小学校 1,000m
倉敷西中学校 2,000m |
||
交通 |
JR山陽本線 倉敷駅まで 徒歩27分 2,000m |
||
建築条件 |
条件無 |
||
特色/設備 |
建築条件なし、公営水道、公共下水、実測清算有り、上下水道負担金55万円、①②号地セットバック要、②号地 129.06㎡ (39.04坪) 55万円/坪 29,472,000円 もあり |
||
情報更新日 |
2025年10月14日 |
次回更新予定日 |
2025年10月14日 |
取引条件有効期限 |
2025年10月14日 |
取引態様 |
仲介 |
※掲載されている物件データが現状と異なる場合は現状を優先します。

株式会社おおたか不動産COMPANY
所在地 |
岡山県倉敷市東富井857-1 |
||
---|---|---|---|
免許番号 |
岡山県知事免許(3)第5408号 |
||
会員 |
(公社)岡山県宅地建物取引業協会
(公社)全国宅地建物取引業保証協会
|
||
電話番号 |
086-441-5010 |
FAX番号 |
086-441-5011 |
営業時間 |
9:00~19:00 |
定休日 |
日・祝日(事前のご予約を承ります。) |