倉敷市中庄の中古一戸建て住宅

価格 3,380万円

1/15
Point

【倉敷市中庄の中古住宅の不動産/中庄小学校】
■道を挟んで西隣が北中学校の体育館!!遅くなる部活帰りも安心な倉敷北中学校まで徒歩1分の50m、南西角地に建つ日当たりの良い築9年の木造平屋住宅のご紹介です。
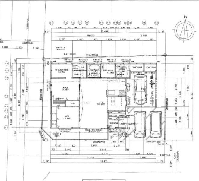
■敷地面積は51坪。間取りは、単身者や少数家族に最適な2LDK。お引渡しは、2026年5月以降の予定です。
■玄関は、シューズクロークが設けてあり、スッキリした印象です。普段家族が過ごすLDKは、20.2帖の広々空間!!キッチンは独立型で調理の匂いがリビングに広がりにくく、お料理に集中できます。
■お部屋は、リビングに隣接した4.8帖と6.4帖の洋室があります。いずれも収納完備で生活空間をすっきり整えます♪♪
■駐車場は、ガレージに1台、敷地内にはあわせて3台ほど(車種による)駐車できそうです。来客があっても心配いりませんね。
■ガレージには、扉付き収納があり、季節家電や大型のアウトドア用品も収納できます。自転車も置けますよ!!
■お買い物は、品揃え豊富なマルナカ中庄店まで徒歩14分の1000m、生鮮食品も一部取り扱うザグザグ中庄店まで徒歩16分の1200m、24時間営業が嬉しいファミリーマート中庄店まで徒歩8分の550m、電化製品は何でも揃うエディオン中庄店まで徒歩8分の600m。
■毎日の通学が心とからだを育てる中庄小学校まで徒歩19分の1300m。

物件番号「7166」をお伝えください。

電話でお問合せ

物件情報

物件名 倉敷市中庄の中古一戸建て住宅
種類 中古住宅
価格 3,380万円
間取 2LDK+WIC
間取詳細 LDK20.2,洋6.4,WIC,洋4.8
所在地
倉敷市中庄
小・中学校区 中庄小学校 1,300m/倉敷北中学校 50m
交通 JR山陽本線 中庄駅まで 徒歩28分 2,100m
土地面積 169.28m²
51.2坪
建物面積 98.28m²
29.72坪
建物構造 木造
階数(階) 1
西暦築年月 2016/10
築年数 築9年
現況 居住中(2026.5月以降に退去予定)
引渡時期 相談
駐車場 車種により3台可(内ガレージ1台分)
接道(全て) 西 4.2m(幅員) 公道 8.9m(接面)
南 私道 位置指定有 15.1m(接面)
接道状況 角地
地目 宅地
土地権利 所有権
都市計画 市街化区域
用途地域1 第一種住居地域
建ぺい率1 60%
容積率1 200%
備考 築9年の木造平屋住宅、床暖房、TVアンテナなし、独立型キッチン、大型犬飼育中、2026年5月以降に退去予定、私道持分1/13あり
取引態様 仲介
おすすめポイント 【倉敷市中庄の中古住宅の不動産/中庄小学校】
■道を挟んで西隣が北中学校の体育館!!遅くなる部活帰りも安心な倉敷北中学校まで徒歩1分の50m、南西角地に建つ日当たりの良い築9年の木造平屋住宅のご紹介です。
■敷地面積は51坪。間取りは、単身者や少数家族に最適な2LDK。お引渡しは、2026年5月以降の予定です。
■玄関は、シューズクロークが設けてあり、スッキリした印象です。普段家族が過ごすLDKは、20.2帖の広々空間!!キッチンは独立型で調理の匂いがリビングに広がりにくく、お料理に集中できます。
■お部屋は、リビングに隣接した4.8帖と6.4帖の洋室があります。いずれも収納完備で生活空間をすっきり整えます♪♪
■駐車場は、ガレージに1台、敷地内にはあわせて3台ほど(車種による)駐車できそうです。来客があっても心配いりませんね。
■ガレージには、扉付き収納があり、季節家電や大型のアウトドア用品も収納できます。自転車も置けますよ!!
■お買い物は、品揃え豊富なマルナカ中庄店まで徒歩14分の1000m、生鮮食品も一部取り扱うザグザグ中庄店まで徒歩16分の1200m、24時間営業が嬉しいファミリーマート中庄店まで徒歩8分の550m、電化製品は何でも揃うエディオン中庄店まで徒歩8分の600m。
■毎日の通学が心とからだを育てる中庄小学校まで徒歩19分の1300m。
※掲載されている物件データが現状と異なる場合は現状を優先します。

更新情報

情報更新日 2026年03月19日
次回更新予定日 2026年03月21日
取引条件有効期限 2026年03月25日

ローンシミュレーション

物件価格 3,380万円
頭金 万円
内ボーナス 万円
金利
借入期間
再計算
月々の返済額
ボーナス月
年間の返済額
返済総額
利息合計
※ 毎回の返済額が開始から終了まで均等となる「元利均等返済」で算出しています。
※ 金利は期間中固定となる固定金利を採用しています。
※ 月々の返済額は小数点以下を繰り上げしております
※ シミュレーションでの結果は、あくまでも目安で、概算になります。実際にローン契約をする際は、詳細を金融機関にご確認ください。
※ 実際のローン契約時には諸費用・税金(手数料や印紙税、保証料など)が別途かかりますので、契約の際にご確認ください。

物件番号「7166」をお伝えください。

電話でお問合せ
電話でお問合せ メールでお問合せ
メールでお問合せ
OK