
物件番号「7139」をお伝えください。
| 物件名 | 倉敷市茶屋町第3 新築建売 |
| 種類 | 新築住宅 |
| 価格 | 2,980万円 |
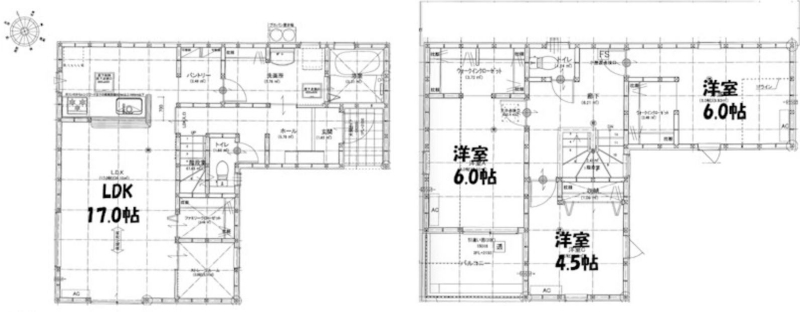
| 間取 | 3LDK+2WIC,ストレージルーム |
| 間取詳細 | LDK17,洋6,洋6,洋4.5 |
| 所在地 | |
| 小・中学校区 | 茶屋町小学校 270m/東陽中学校 400m |
| 交通 | JR宇野みなと線・瀬戸大橋線 茶屋町駅まで 徒歩12分 900m |
| 土地面積 | 127.79m² |
| 38.65坪 | |
| 建物面積 | 101.02m² |
| 30.55坪 | |
| 建物構造 | 木造 |
| 階数(階) | 2 |
| 西暦築年月 | 2026/03 |
| 築年数 | 1年未満 |
| 現況 | 完成済 |
| 引渡時期 | 即時 |
| 駐車場 | 2台分 |
| 接道(全て) | 南 4m(幅員) 公道 11.67m(接面) |
| 接道状況 | 一方 |
| 地目 | 宅地 |
| 土地権利 | 所有権 |
| 都市計画 | 市街化区域 |
| 用途地域1 | 第一種低層住居専用地域 |
| 建ぺい率1 | 50% |
| 容積率1 | 100% |
| 備考 | 新築建売(防犯鍵・TVモニター付きインターホン・火災報知器・全自動お湯はり機能・浴室乾燥機・洗浄便座・洗面化粧台・ペアガラス・浄水器付きシステムキッチン・床下収納・3口ガスコンロ・24時間換気・10年保証)、公営水道、公共下水、プロパンガス |
| 取引態様 | 仲介 |
| おすすめポイント | 【倉敷市茶屋町の新築建売住宅の不動産/茶屋町小学校】 ■小さなお子様も無理なく通える茶屋町小学校まで徒歩4分の270m、閑静な住宅地の一角に新築建売住宅(TVモニター付きインターホン・全自動お湯張り機能付きバス・浴室乾燥機・温水洗浄便座・ハンドシャワー付き洗面台・ペアガラス・浄水器・床下収納・24時間換気システム付き)が誕生しました!!! ■お子様の送り迎えもママに嬉しい茶屋町東幼稚園まで徒歩8分の550m、遅くなる部活帰りも近くて安心な東陽中学校まで徒歩6分の400mと学校に通いやすい立地です。 ■間取りは2階に個室が3部屋ある3LDK。子育て世代が生活しやすい広さです。TVモニター付きインターホン・省エネ給湯器・浴室暖房乾燥機など生活がワンランクあがる嬉しい仕様!! ■敷地面積は、38坪。南道路に面した日当たりの良い立地で、駐車場は2台分を確保しています。 ■1階には、ストレージルームとファミリークローゼットを備えた17帖のLDK。お部屋がスッキリ片付きます。ママ憧れのキッチンは対面式。小さなお子様を見守りながらお料理が作れますね。開放的な空間で家族の会話も弾みます。 ■キッチン横のパントリーは使い勝手抜群!!水回り(キッチン・洗面・お風呂)が1直線に並んだ配置は、家事動線が短いので、効率よく家事がこなせます。 ■階段を上がると、2階には洋室が3部屋。それぞれに収納があり、生活空間をすっきり整えます。インナーバルコニーは、急な天候不良や花粉の季節に大活躍!! ■お買い物は、品揃え豊富なマルナカ茶屋町店まで徒歩8分の550m、旬の食材が揃うエブリイ茶屋町店まで徒歩10分の700m、24時間営業が嬉しいセブン-イレブン倉敷茶屋町店まで徒歩9分の650m。 ■倉敷市茶屋町支所まで徒歩7分の500m、岡山や四国方面への通勤通学に便利な宇野みなと線JR茶屋町駅まで徒歩12分の900m、パパのDIYの材料は何でも揃うホームセンタージュンテンドー茶屋町店まで徒歩10分の700m、近くて便利な中国銀行茶屋町支店まで徒歩12分の850m、茶屋町郵便局まで徒歩14分の1000mなど利便施設が徒歩圏内の便利な地。 |
| 情報更新日 | 2026年03月19日 |
| 次回更新予定日 | 2026年03月21日 |
| 取引条件有効期限 | 2026年03月25日 |
| 物件価格 | 2,980万円 |
| 頭金 | 万円 |
| 内ボーナス | 万円 |
| 金利 | % |
| 借入期間 | 年 |
| 月々の返済額 | |
| ボーナス月 | |
| 年間の返済額 | |
| 返済総額 | |
| 利息合計 |
物件番号「7139」をお伝えください。
【倉敷市茶屋町の新築建売住宅の不動産/茶屋町小学校】
■小さなお子様も無理なく通える茶屋町小学校まで徒歩4分の270m、閑静な住宅地の一角に新築建売住宅(TVモニター付きインターホン・全自動お湯張り機能付きバス・浴室乾燥機・温水洗浄便座・ハンドシャワー付き洗面台・ペアガラス・浄水器・床下収納・24時間換気システム付き)が誕生しました!!!
■お子様の送り迎えもママに嬉しい茶屋町東幼稚園まで徒歩8分の550m、遅くなる部活帰りも近くて安心な東陽中学校まで徒歩6分の400mと学校に通いやすい立地です。
■間取りは2階に個室が3部屋ある3LDK。子育て世代が生活しやすい広さです。TVモニター付きインターホン・省エネ給湯器・浴室暖房乾燥機など生活がワンランクあがる嬉しい仕様!!
■敷地面積は、38坪。南道路に面した日当たりの良い立地で、駐車場は2台分を確保しています。
■1階には、ストレージルームとファミリークローゼットを備えた17帖のLDK。お部屋がスッキリ片付きます。ママ憧れのキッチンは対面式。小さなお子様を見守りながらお料理が作れますね。開放的な空間で家族の会話も弾みます。
■キッチン横のパントリーは使い勝手抜群!!水回り(キッチン・洗面・お風呂)が1直線に並んだ配置は、家事動線が短いので、効率よく家事がこなせます。
■階段を上がると、2階には洋室が3部屋。それぞれに収納があり、生活空間をすっきり整えます。インナーバルコニーは、急な天候不良や花粉の季節に大活躍!!
■お買い物は、品揃え豊富なマルナカ茶屋町店まで徒歩8分の550m、旬の食材が揃うエブリイ茶屋町店まで徒歩10分の700m、24時間営業が嬉しいセブン-イレブン倉敷茶屋町店まで徒歩9分の650m。
■倉敷市茶屋町支所まで徒歩7分の500m、岡山や四国方面への通勤通学に便利な宇野みなと線JR茶屋町駅まで徒歩12分の900m、パパのDIYの材料は何でも揃うホームセンタージュンテンドー茶屋町店まで徒歩10分の700m、近くて便利な中国銀行茶屋町支店まで徒歩12分の850m、茶屋町郵便局まで徒歩14分の1000mなど利便施設が徒歩圏内の便利な地。