倉敷市老松町5丁目の中古一戸建て住宅

価格 4,080万円

1/15
Point

【倉敷市老松町5丁目の中古住宅の不動産/老松小学校】
■小さなお子様も無理なく通える老松小学校まで徒歩14分の1000m、遅くなる部活帰りも近くて安心な倉敷西中学校まで徒歩9分の650m、区画の整った閑静な住宅地の一角、49坪の敷地に建つ中古住宅のご紹介です。
■二方道路で開放感のある立地。南向きで日当たりの良い3SLDKのオール電化住宅です。
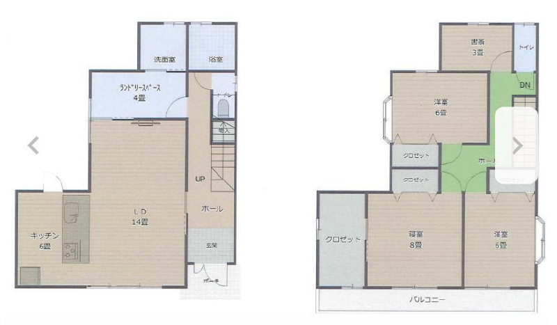
■1階には、南向きの開放的な20帖のLDK。キッチンは、ママ憧れのオープン式のペニンシュラキッチン。お子様の様子を見守りながらお料理が作れます。ご家族との会話も楽しむことができますね。
■4帖の納戸は、室内干しのスペースとして、ファミリークローゼットとして、生活スタイルに合わせて自由にお使いいただけます。
■階段を上がると2階には、洋室が3部屋。全居室に収納があり、主寝室には収納力のあるウォークインクローゼットがついています。生活空間をすっきり整えます。
■3帖の納戸は、収納以外にも書斎や趣味のお部屋、リモートワークスペースなど様々な使い方が可能です♪
■お買い物は、新鮮な食材が豊富な山陽マルナカ老松店まで徒歩3分の220m、ローソン倉敷沖店まで徒歩5分の300m、ドラッグストアや100円ショップも敷地内に同居する24時間営業のハローズ田ノ上店まで徒歩13分の950m。
■家電なら何でも揃うケーズデンキ倉敷店まで徒歩5分の350m、急な体調不良に近くて安心な倉敷第一病院まで徒歩8分の550m、周辺には飲食店やクリーニング店など生活利便施設が揃う便利な立地です。

物件番号「7061」をお伝えください。

電話でお問合せ

物件情報

物件名 倉敷市老松町5丁目の中古一戸建て住宅
種類 中古住宅
価格 4,080万円
間取 3LDK+3S
間取詳細 LDK20,S4,洋8,WIC,洋6,洋6,書斎
所在地
倉敷市老松町5丁目
小・中学校区 老松小学校 1,000m/倉敷西中学校 650m
交通 JR山陽本線 倉敷駅まで 徒歩21分 1,600m
土地面積 163.72m²
49.52坪
建物面積 120.89m²
36.56坪
建物構造 木造
階数(階) 2
西暦築年月 2007/10
築年数 築18年
現況 空家
引渡時期 即時
駐車場 3台(車種による)
接道(全て) 南 6m(幅員) 公道 12.6m(接面)
北西 4.6m(幅員) 公道 19.4m(接面)
接道状況 二方(除角地)
地目 宅地
土地権利 所有権
都市計画 市街化区域
用途地域1 準工業地域
建ぺい率1 60%
容積率1 200%
備考 オール電化住宅、太陽光発電システム搭載、バリアフリー、公営水道、公共下水、令和6年2月に室内リフォーム済、現況有姿渡し
取引態様 仲介
おすすめポイント 【倉敷市老松町5丁目の中古住宅の不動産/老松小学校】
■小さなお子様も無理なく通える老松小学校まで徒歩14分の1000m、遅くなる部活帰りも近くて安心な倉敷西中学校まで徒歩9分の650m、区画の整った閑静な住宅地の一角、49坪の敷地に建つ中古住宅のご紹介です。
■二方道路で開放感のある立地。南向きで日当たりの良い3SLDKのオール電化住宅です。
■1階には、南向きの開放的な20帖のLDK。キッチンは、ママ憧れのオープン式のペニンシュラキッチン。お子様の様子を見守りながらお料理が作れます。ご家族との会話も楽しむことができますね。
■4帖の納戸は、室内干しのスペースとして、ファミリークローゼットとして、生活スタイルに合わせて自由にお使いいただけます。
■階段を上がると2階には、洋室が3部屋。全居室に収納があり、主寝室には収納力のあるウォークインクローゼットがついています。生活空間をすっきり整えます。
■3帖の納戸は、収納以外にも書斎や趣味のお部屋、リモートワークスペースなど様々な使い方が可能です♪
■お買い物は、新鮮な食材が豊富な山陽マルナカ老松店まで徒歩3分の220m、ローソン倉敷沖店まで徒歩5分の300m、ドラッグストアや100円ショップも敷地内に同居する24時間営業のハローズ田ノ上店まで徒歩13分の950m。
■家電なら何でも揃うケーズデンキ倉敷店まで徒歩5分の350m、急な体調不良に近くて安心な倉敷第一病院まで徒歩8分の550m、周辺には飲食店やクリーニング店など生活利便施設が揃う便利な立地です。
※掲載されている物件データが現状と異なる場合は現状を優先します。

更新情報

情報更新日 2025年10月31日
次回更新予定日 2025年11月01日
取引条件有効期限 2025年11月05日

ローンシミュレーション

物件価格 4,080万円
頭金 万円
内ボーナス 万円
金利
借入期間
再計算
月々の返済額
ボーナス月
年間の返済額
返済総額
利息合計
※ 毎回の返済額が開始から終了まで均等となる「元利均等返済」で算出しています。
※ 金利は期間中固定となる固定金利を採用しています。
※ 月々の返済額は小数点以下を繰り上げしております
※ シミュレーションでの結果は、あくまでも目安で、概算になります。実際にローン契約をする際は、詳細を金融機関にご確認ください。
※ 実際のローン契約時には諸費用・税金(手数料や印紙税、保証料など)が別途かかりますので、契約の際にご確認ください。

物件番号「7061」をお伝えください。

電話でお問合せ
電話でお問合せ メールでお問合せ
メールでお問合せ
OK