倉敷市白楽町 ①号地の売土地

価格 2,085.55万円

1/21
Point

【倉敷市白楽町の売土地の不動産/老松小学校】
■小さなお子様も無理なく通える老松小学校まで徒歩14分の1000m、倉敷成人病センターにほど近い閑静な住宅地の一角に全2区画の新規分譲地が誕生しました!!!
■敷地面積は、どちらも39坪。今ならお好きな区画が選べます。
■建築条件はありません。お好きなハウスメーカーや工務店で夢のマイホームが実現できます。
■お買い物は、旬の食材が揃うニシナフードバスケット市役所北店まで徒歩12分の800m、毎日がセール価格で豊富な品揃えのザ・ビッグ倉敷店まで徒歩12分の800m、買い忘れにも便利なセブン-イレブン倉敷商業高校西店まで徒歩5分の400m、ファミリーマート倉敷西中新田店まで徒歩5分の350m。
■岡山や玉島・福山方面へのマイカー通勤にも便利な国道2号線岡山バイパス笹沖交差点までお車で5分の1000m、アクセスの良さが魅力です。
■急な体調不良はもちろん休日・夜間診療対応が心強い倉敷成人病センターまで徒歩5分の400m、近くて便利な中国銀行倉敷支店まで徒歩6分の450m、倉敷市役所まで徒歩10分の700m、倉敷商業高等学校まで徒歩6分の450m。
■近隣には他にドラッグストア、飲食店、コインランドリーなどの生活利便施設多数!!!徒歩圏内に施設が揃う便利な立地です。

物件番号「7051」をお伝えください。

電話でお問合せ

物件情報

種類 土地
所在地
倉敷市白楽町 地図
物件名 倉敷市白楽町 ①号地の売土地
価格 2,085.55万円
坪単価 52.66万円
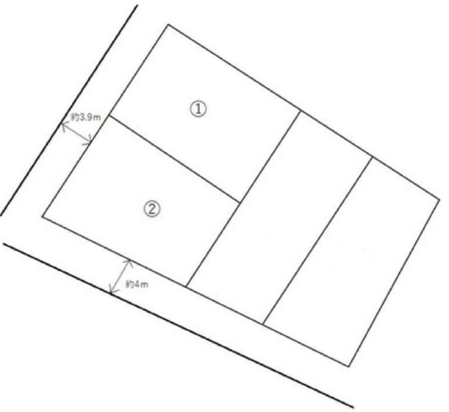
土地面積 130.9m²
39.59坪
小・中学校区 老松小学校 1,000m/倉敷西中学校 2,000m
交通 JR山陽本線 倉敷駅まで 徒歩27分 2,000m
都市計画 市街化区域
用途地域 第一種住居地域
建ぺい率 60%
容積率 200%
土地権利 所有権
地目 宅地
現況 更地
引渡時期 相談
接道 西 3.9m(幅員) 公道 9.46m(接面)
接道状況 一方
建築条件 条件無
備考 建築条件なし、公営水道、公共下水、実測清算有り、上下水道負担金55万円、①②号地セットバック要、②号地 129.06㎡ (39.04坪) 55万円/坪 21,472,000円 もあり
取引態様 仲介
周辺施設
おすすめポイント 【倉敷市白楽町の売土地の不動産/老松小学校】
■小さなお子様も無理なく通える老松小学校まで徒歩14分の1000m、倉敷成人病センターにほど近い閑静な住宅地の一角に全2区画の新規分譲地が誕生しました!!!
■敷地面積は、どちらも39坪。今ならお好きな区画が選べます。
■建築条件はありません。お好きなハウスメーカーや工務店で夢のマイホームが実現できます。
■お買い物は、旬の食材が揃うニシナフードバスケット市役所北店まで徒歩12分の800m、毎日がセール価格で豊富な品揃えのザ・ビッグ倉敷店まで徒歩12分の800m、買い忘れにも便利なセブン-イレブン倉敷商業高校西店まで徒歩5分の400m、ファミリーマート倉敷西中新田店まで徒歩5分の350m。
■岡山や玉島・福山方面へのマイカー通勤にも便利な国道2号線岡山バイパス笹沖交差点までお車で5分の1000m、アクセスの良さが魅力です。
■急な体調不良はもちろん休日・夜間診療対応が心強い倉敷成人病センターまで徒歩5分の400m、近くて便利な中国銀行倉敷支店まで徒歩6分の450m、倉敷市役所まで徒歩10分の700m、倉敷商業高等学校まで徒歩6分の450m。
■近隣には他にドラッグストア、飲食店、コインランドリーなどの生活利便施設多数!!!徒歩圏内に施設が揃う便利な立地です。
※掲載されている物件データが現状と異なる場合は現状を優先します。

更新情報

情報更新日 2026年02月02日
次回更新予定日 2026年02月03日
取引条件有効期限 2026年02月08日

ローンシミュレーション

物件価格 2,085.55万円
頭金 万円
内ボーナス 万円
金利
借入期間
再計算
月々の返済額
ボーナス月
年間の返済額
返済総額
利息合計
※ 毎回の返済額が開始から終了まで均等となる「元利均等返済」で算出しています。
※ 金利は期間中固定となる固定金利を採用しています。
※ 月々の返済額は小数点以下を繰り上げしております
※ シミュレーションでの結果は、あくまでも目安で、概算になります。実際にローン契約をする際は、詳細を金融機関にご確認ください。
※ 実際のローン契約時には諸費用・税金(手数料や印紙税、保証料など)が別途かかりますので、契約の際にご確認ください。

物件番号「7051」をお伝えください。

電話でお問合せ
電話でお問合せ メールでお問合せ
メールでお問合せ
OK